|
詳細介紹
一、XLJ型旋轉式固液分離機
XLJ型旋轉式固液分離機廣泛適用于工業廢水的固液分離,可去除污水中0.35mm以上的固體物質。亦可應用于化工、輕工等行業的固液分離。
|
1.1 原理及特征
廢水通過進水管緩沖布水管進入濾網,依靠電機帶動旋轉濾網旋轉,進行對廢水的連續過濾,廢水中的廢渣被截留在濾網上面,通過濾網上面的導頁將廢渣從濾網的另一側排出,達到固液分離的目的。濾網采用不銹鋼材質,不易堵塞,抗腐蝕能力強。 |
 |
1.2 規格參數
|
參數型號 |
電機功率(kW) |
網筒直徑(mm) |
處理能力(m3/h) |
網孔間隙(mm) |
去除率(%) | |
粒徑>0.75 |
粒徑>0.35 | |
XLJ50 |
0.37 |
600 |
50 |
0.3~5 |
95 |
55 | |
XLJ100 |
0.75 |
900 |
100 | |
XLJ150 |
0.75 |
1050 |
150 | |
XLJ200 |
1.5 |
1200 |
200 | |
XLJ300 |
1.5 |
1350 |
300 | |
XLJ400 |
1.5 |
1500 |
400 |
注:表中網筒直徑和去除率為0.35mm網孔間隙時。 |
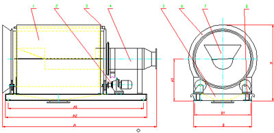
1.3 設備結構圖
1.4 設備規格表(單位mm)
|
規格型號 |
A |
A1 |
A2 |
B |
B1 |
H1 |
H2 | |
XLJ50 |
2475 |
2267 |
2167 |
716 |
676 |
542 |
942 | |
XLJ100 |
3320 |
3017 |
2917 |
1062 |
1012 |
722 |
1218 | |
XLJ200 |
3320 |
3017 |
2917 |
1254 |
1204 |
837 |
1483 | |
XLJ400 |
3720 |
3417 |
3317 |
1583 |
1533 |
1052 |
1833 |
|
二、ZXS型旋流除砂設備
旋流式沉砂除砂機是一種新型的砂水分離工藝.該產品主要由驅動裝置、攪拌機構、操作平臺、吸砂系統、電控系統等部分組成。
2.1 工作原理
水流以一定的流速從沉砂池的切向進入,從而對砂粒產生離心力,使較重的砂粒沿池壁及沉砂池獨特的結構沉降到池底集砂斗。葉片的旋轉在沉砂池的中心形成軸向渦流,產生一個輕微的上升流速,從而帶動有機物顆粒上升并送回到水流之中。集砂斗的砂粒通過空氣提升系統或砂泵提升到螺旋砂水分離器進行砂水分離。 旋流沉砂池及配套設備是一種新引進的技術,用于給排水工程中去除水中的砂及粘在砂上的有機物質。直徑0.2mm以上的砂粒,去除率達95%以上;直徑0.1mm以上、0.2mm以下的砂粒,去除率達65%以上。適合大、中、小型水廠,對于國內污水處理中普遍應用的平流式沉砂池是一種很好的替代產品。
2.2 技術參數
|
型號 |
流量m3/h |
功率kw |
A(m) |
B(m) |
C(m) |
D(m) |
E(m) |
F(m) |
G(m) |
H(m) |
I(m) |
J(m) |
K(m) |
|
XLC-1.8 |
180 |
0.55 |
1.83 |
1.0 |
0.31 |
0.61 |
0.30 |
1.40 |
0.30 |
0.30 |
0.20 |
0.80 |
1.10 |
|
XLC-3.6 |
360 |
0.55 |
2.13 |
1.0 |
0.38 |
0.67 |
0.30 |
1.40 |
0.30 |
0.30 |
0.30 |
0.80 |
1.10 |
|
XLC-6 |
600 |
0.55 |
2.43 |
1.0 |
0.45 |
0.90 |
0.30 |
1.45 |
0.40 |
0.30 |
0.40 |
0.80 |
1.15 |
|
XLC-10 |
1000 |
0.75 |
3.05 |
1.0 |
0.61 |
1.20 |
0.30 |
1.55 |
0.45 |
0.30 |
0.45 |
0.80 |
1.35 |
|
XLC-18 |
1800 |
0.75 |
3.65 |
1.5 |
0.75 |
1.50 |
0.40 |
1.70 |
0.60 |
0.51 |
0.58 |
0.80 |
1.45 |
|
XLC-30 |
3000 |
1.1 |
4.87 |
1.5 |
1.00 |
2.00 |
0.40 |
2.20 |
1.00 |
0.51 |
0.60 |
0.80 |
1.85 |
|
XLC-46 |
4600 |
1.1 |
5.48 |
1.5 |
1.10 |
2.20 |
0.40 |
2.20 |
1.00 |
0.61 |
0.63 |
0.80 |
1.85 |
|
XLC-60 |
6000 |
1.5 |
5.80 |
1.5 |
1.20 |
2.40 |
0.40 |
2.50 |
0.30 |
0.75 |
0.70 |
0.80 |
1.95 |
|
XLC-78 |
7800 |
2.2 |
6.10 |
1.5 |
1.20 |
2.40 |
0.40 |
2.50 |
1.30 |
0.89 |
0.75 |
0.80 |
1.95 |
|
三、LXF螺旋砂水分離器
螺旋砂水分離器適用于給排水工程中砂粒與水的分離,直徑0.2mm以上的砂粒,分離效率達95%以上。
|
3.1 工作原理
砂水混合物從分離器的頂部法蘭進入水槽,比重大的砂粒沉積于集水槽底部;驅動裝置帶動無軸螺旋體轉動,砂粒在螺旋體的作用下沿著傾斜的U型槽逐漸向上移動,離開液面,使砂粒與水分離;砂粒離開液面后繼續向上移動一段距離,使砂粒在到排砂口前充分脫水;與砂粒分離后的水從溢流口返回到沉砂池入口。 |
 |
3.2 設備特點
獨立式結構,可根據用戶的要求安裝于任何位置。 采用無軸螺旋體柔性結構,適于砂水混合物濃度的變化。 U型槽內加非金屬快換襯套,便于維修。 減速機采用先進的軸裝式結構,結構簡單。 全封閉結構,安全、可靠。 安裝方便,操作簡便,維護容易,使用壽命長。
3.3 技術參數
|
型號參數 |
LXF-260 |
LXF-320 |
LXF-355 |
LXF-420 | |
處理量(l/s) |
12 |
20 |
27 |
35 | |
電機功率(kW) |
0.55 |
0.75 |
0.75 |
1.1 | |
L |
4000 |
4500 |
5800 |
6200 | |
H |
1500 |
1700 |
2150 |
2150 | |
H1 |
1520 |
1730 |
2300 |
2450 | |
A1 |
300 |
500 |
500 |
500 | |
A |
2300 |
2450 |
3500 |
3450 | |
B |
1100 |
1300 |
1400 |
1600 |
|
|